Características
- Aire acondicionado: no
- Gastos comunidad: 22 €/Mes
- Estado: Disponible
Detalles
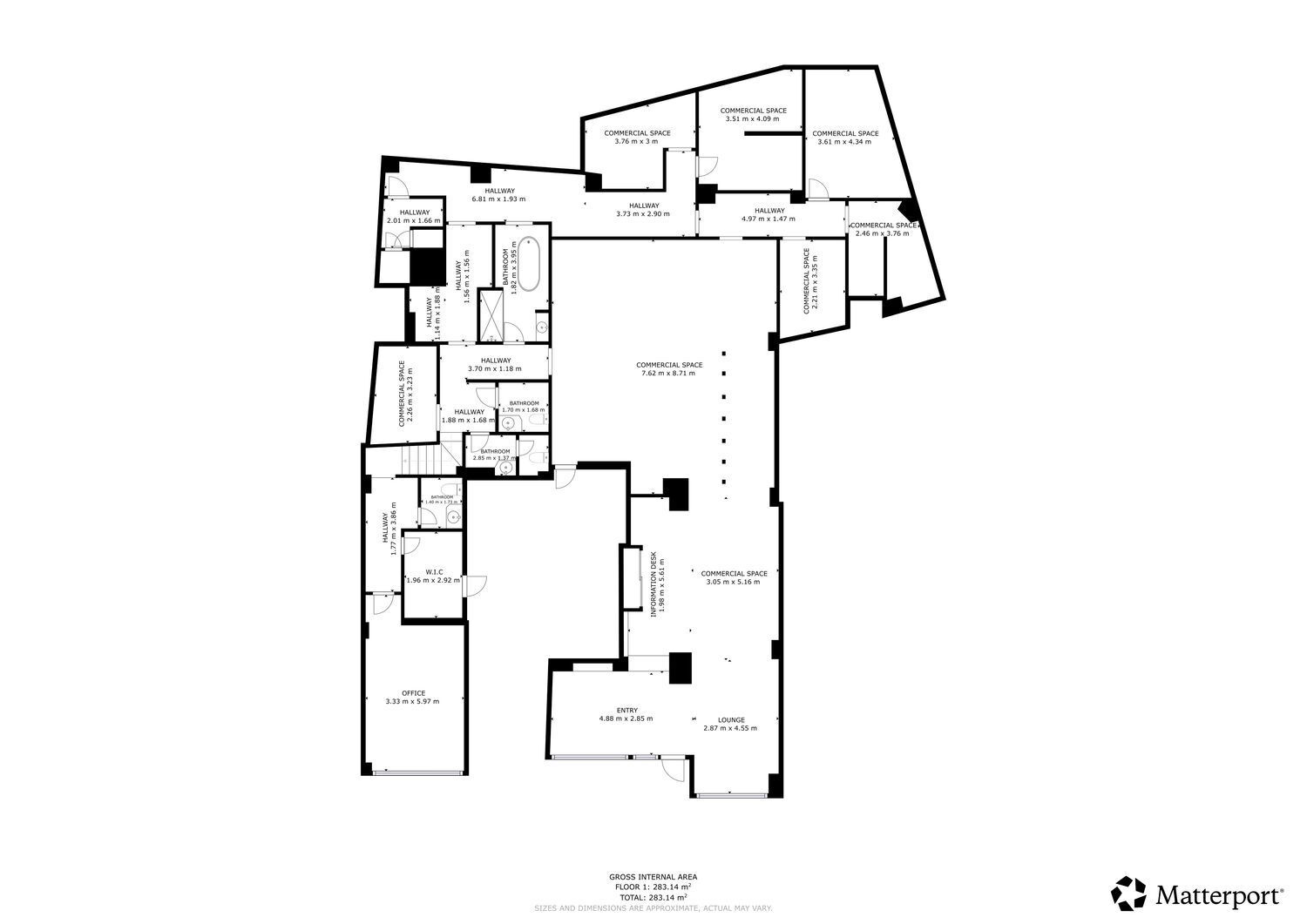
Local a pie de calle, en venta en Calle Venezuela, Vigo. Totalmente reformando en el año 2003. Situado a escasos metros del Corte Inglés. Con todos los servicios alrededor y con muy buen acceso en coche o por medios de transporte público. Con una superficie construida de 302m2 dispone de dos plantas. La planta baja es la de mayor superficie, con dos servicios, uno apto para minusválidos. En la planta alta hay una oficina pequeña, otra estancia que se puede destinar a despacho y un aseo. Cuenta con dos escaparates con cristalera, con carpintería de aluminio y verja automática. Antiguamente dedicado a un salón de belleza con peluquería y spa. Actualmente, destinado a una galería de fotografías, totalmente diseñado y decorado para esa actividad, dividido en 16 estancias. Es un local que de acuerdo a la ordenanza municipal (U1) podrá adecuarse a los siguientes usos: *Terciario: Hoteleiro *Terciario: Comercial. Categoría 1ª, 2ª. *Terciario: Oficinas *Terciario: Recreativo. Categoría 1ª, 2ª, Tipo I y II, 3ª. *Industrial: en las siguientes categorías y grupos: +Productiva: Categoría 1ª, 2ª. +Almacenamiento: Categoría 1ª. *Servicio del automóvil en las siguientes categorías y grados: Categoría 1ª, 2ª y 4ª, siempre que no implique operaciones de chapistería y pintura y garantizando la ausencia de vertidos que puedan deteriorar las instalaciones de sumideros y depuración. *Dotacional- Equipamientos: -Educativo. En la planta baja del edificio y el primer piso conectado directamente con la planta baja o en un edificio exclusivo. -Socio cultural. Categoría 1ª en edificación exclusiva y 2ª. -Asistencial- Sanitario. Categoría 1ª, 3ª, en planta baja del edificio y el primer piso conectado directamente con la planta baja o en un edificio exclusivo. Categoría 2ª, 4ª en edificación exclusiva. Categoría 5ª, en planta baja de la edificación. -Administración institucional. -Deportivo. Categoría 1ª, en planta baja de la edificación. -Religioso. Categoría 1ª, en planta baja. Categoría 2ª en edificación en edificación exclusiva. -Dotacional múltiple. La cuota de comunidad es 21,56?. Actualmente, se está pagando una derrama del edificio. Si buscas un sitio amplio y bien situado para comenzar tu nuevo negocio y adaptarlo a tu gusto ¡Llámanos para visitarlo! "RE/MAX FINANCE a través de convenios nacionales con las principales entidades bancarias permite que nuestros clientes disfruten de las mejores opciones de financiación del mercado, con condiciones especiales y ventajosas, recibiendo un trato "prime" que nos diferencia". Nota: este anuncio es meramente informativo y carece de valor contractual, puede contener algún error involuntario.
Gastos de Compraventa
Calcula el coste total real de adquisición de este inmueble de acuerdo con las obligaciones de transparencia establecidas por la Ley 10/2025.
Datos del inmueble
El precio de venta se obtiene directamente del anuncio. Indica si se trata de obra nueva o segunda mano y selecciona la comunidad autónoma para aplicar el tipo impositivo correcto.
¿Habrá hipoteca?
Si el comprador necesita financiación bancaria, los gastos de constitución de la hipoteca deben también contemplarse en el coste total de la operación.
Todos estos gastos deben aparecer desglosados en el anuncio del inmueble desde el primer momento de su publicación. Queda prohibida la práctica del precio por tramos: no se pueden añadir costes adicionales durante la negociación que no figurasen en el anuncio inicial.
Estimación orientativa. Los impuestos (ITP, IVA/IGIC, AJD) son fijos según la normativa vigente a 06/03/2026. Los importes de notaría, registro y gestoría son aproximaciones calculadas conforme a los aranceles en vigor. Nota: Cataluña aplica ITP del 10% hasta el 30/06/2026 y bajará al 9% a partir del 01/07/2026. Se recomienda consultar con un profesional para obtener el cálculo exacto adaptado a cada operación.

