- Tipo: Negocios
- Operación Venta
-
Municipio: Alcalá del Río
-
Población:Alcala del Rio
-
Terraza: Sí
-
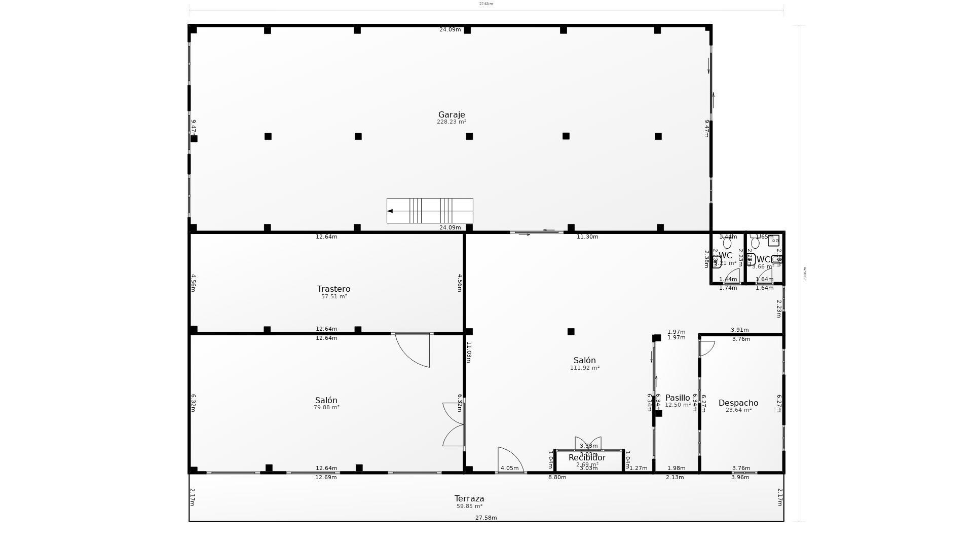
Metros: 635m2
-
Metros parcela: 691m2
-
Año de construcción: 1992
Características
- Aire acondicionado: si
- Orientación: Sur::Oeste
- Estado: Disponible
Detalles
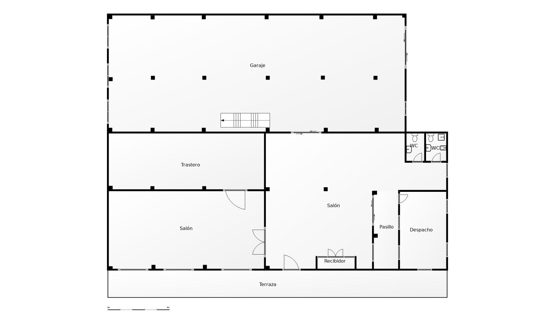
Magnífico local comercial en Alcalá del Río, Sevilla, ubicado en una zona residencial de gran afluencia frente Mercadona. Con un área construida de 635 m², el espacio se distribuye eficientemente entre una amplia zona de exposición-venta y un mostrador que garantiza la atención al cliente efectiva ademas de una gran oficina. El inmueble dispone también de un cómodo almacén situado en la parte trasera del local y planta superior, cuenta con acceso para vehículos a través de un amplio portón lateral y muelle de carga. Su luminosidad destaca gracias a sus grandes ventanales que aportan luz natural durante todo el día. Además, está climatizado para asegurar el confort tanto del personal como de los clientes; la fachada tiene gran visibilidad desde la avenida principal. Hay dos accesos separados que permiten fluir cómodamente entre clientes y personal laboral e incluye sistema alarmado para mayor seguridad. Los planos proporcionados son de carácter aproximado, por lo que las dimensiones y medidas indicadas son orientativas, al igual que la perpendicularidad de las paredes, y deben ser verificadas por el comprador para garantizar su exactitud. En cumplimiento de las obligaciones de información previstas en la Ley 10/2025, de 28 de diciembre, de servicios de atención a la clientela y transparencia, así como en la normativa sectorial vigente, se hace constar que el precio indicado no incluye los gastos e impuestos inherentes a la adquisición, los cuales se desglosan a continuación: PRECIO DE VENTA: 690.000 PVP + GASTOS ? GASTOS: * Impuesto sobre Transmisiones Patrimoniales (ITP): Se aplicará el tipo impositivo vigente en la Comunidad Autónoma de Andalucía generalmente el 7%, sin perjuicio de tipos reducidos del 3,5%, 1,2% o 1% aplicables según las circunstancias personales del comprador o las características del inmueble). El impuesto se devenga sobre el Valor de Referencia de Catastro o el precio de venta, aquel que resulte superior. * Gastos de Notaría: Los honorarios notariales se calcularán conforme al arancel oficial regulado en el Anexo I, del Real Decreto 1426/1989, de 17 de noviembre, por el que se aprueba el arancel Notarial. * Gastos de Registro: La inscripción en el Registro de la Propiedad se facturará según el arancel oficial establecido en el ANEXO I, del Real Decreto 1427/1989, de 17 de noviembre, por el que se aprueba el arancel Notarial. * Gastos de Gestión (Gestoría): Los honorarios por la tramitación administrativa, liquidación de impuestos e inscripción registral ascienden aproximadamente a 600 ? (IVA incluido). * Honorarios Agencia del Vendedor: incluidos en el PVP. * Honorarios Agencia del comprador: no incluidos en el PVP. D.I.A. (Documento Informativo Abreviado) y Certificación Energética a disposición del cliente.
Gastos de Compraventa
Calcula el coste total real de adquisición de este inmueble de acuerdo con las obligaciones de transparencia establecidas por la Ley 10/2025.
Datos del inmueble
El precio de venta se obtiene directamente del anuncio. Indica si se trata de obra nueva o segunda mano y selecciona la comunidad autónoma para aplicar el tipo impositivo correcto.
¿Habrá hipoteca?
Si el comprador necesita financiación bancaria, los gastos de constitución de la hipoteca deben también contemplarse en el coste total de la operación.
Todos estos gastos deben aparecer desglosados en el anuncio del inmueble desde el primer momento de su publicación. Queda prohibida la práctica del precio por tramos: no se pueden añadir costes adicionales durante la negociación que no figurasen en el anuncio inicial.
Estimación orientativa. Los impuestos (ITP, IVA/IGIC, AJD) son fijos según la normativa vigente a 06/03/2026. Los importes de notaría, registro y gestoría son aproximaciones calculadas conforme a los aranceles en vigor. Nota: Cataluña aplica ITP del 10% hasta el 30/06/2026 y bajará al 9% a partir del 01/07/2026. Se recomienda consultar con un profesional para obtener el cálculo exacto adaptado a cada operación.

