- Tipo: Casas o chalets
- Operación Venta
-
Municipio: Carcaixent
-
Población:Carcaixent
-
Habitaciones: 4
-
Baños: 1
-
Terraza: Sí
-
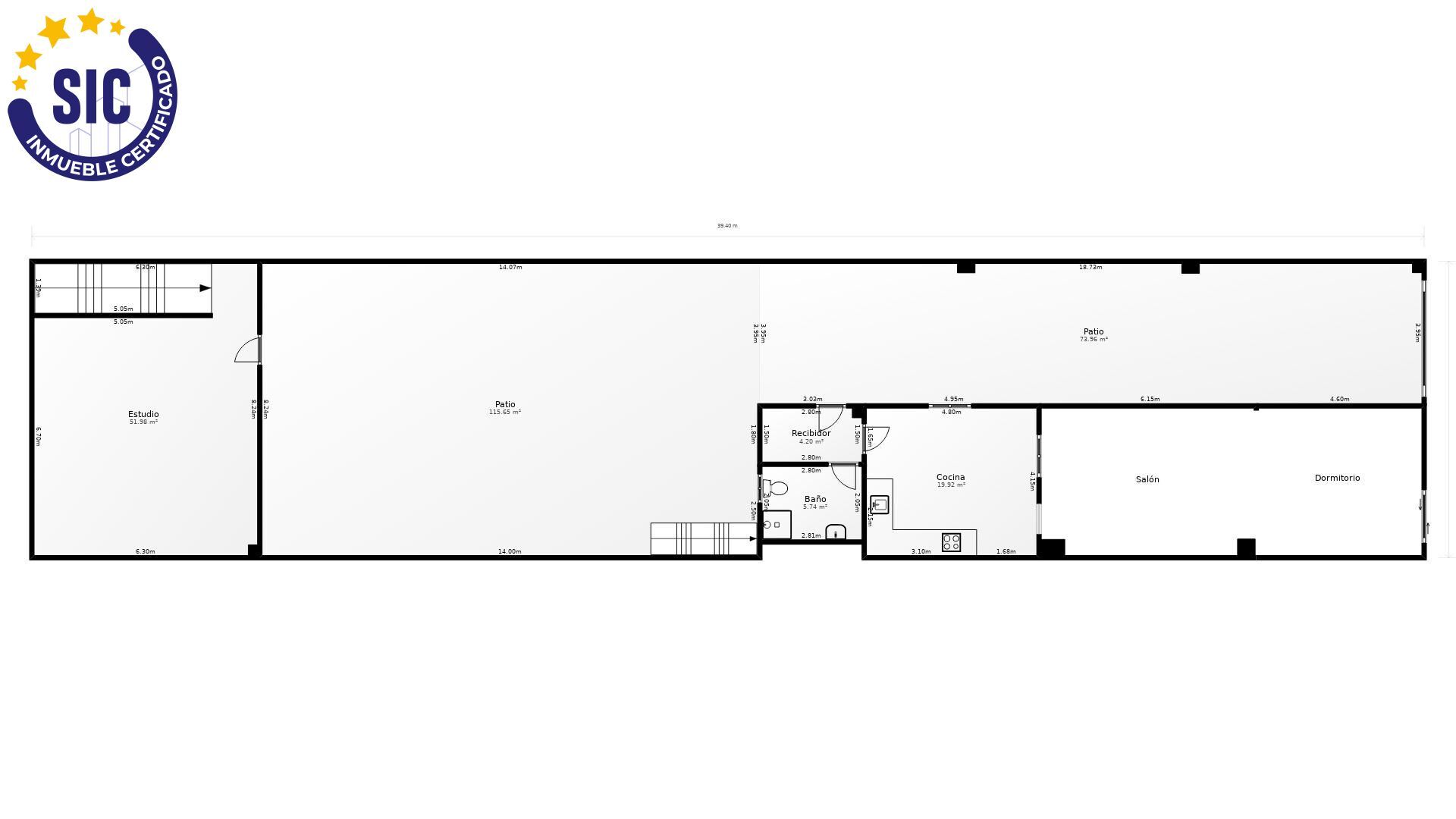
Metros: 192m2
-
Año de construcción: 1900
Características
- Aire acondicionado: si
- Orientación: Este::Oeste
- Estado: Disponible
Detalles
Una vivienda versátil en una de las mejores zonas de Carcaixent. Lo mejor de esta propiedad en la Calle Mestre Giner es que se trata de una casa con estructura sólida, lista para adaptarse a tus proyectos. Alta rentabilidad. Ya dispone de un estudio listo para entrar, con cocina, baño y zona de estar y descanso. Se pueden crear fácilmente tres estudios con entradas independientes desde el amplio patio interior que a la vez es el acceso para vehículos desde la calle. Una calle ancha con facilidad de maniobra para entrada y salida. Además su potencial de crecimiento es alto puesto que la estructura está adecuada para poder ampliar con más alturas hasta lo permitido por las normas urbanísticas de Carcaixent y así poder obtener mayor rentabilidad. Su ubicación es estratégica, ubicada en el mismísimo corazón de Carcaixent te permite disfrutar, al mismo tiempo, de la máxima tranquilidad de la zona y de los mejores servicios que se encuentran a un paso de la vivienda. El Mercado Municipal, el Ayuntamiento, colegios, farmacias, tiendas y zonas de ocio. Ideal tanto para inversores que buscan alquiler múltiple como para familias que necesitan espacios independientes y seguros. VENTA: PVP 189.900?. Gastos e impuestos no incluidos en el precio. La compra conlleva impuestos y gastos de formalización para el comprador. A título orientativo se informa que en segundas transmisiones el ITP con carácter general en Valencia es del 10%, pudiendo existir otros tipos impositivos atendiendo a las circunstancias personales del comprador u otras circunstancias previstas legalmente. Base imponible del impuesto el mayor valor entre el precio de compraventa, la tasación o el valor de referencia catastral. En cuanto a los gastos de notaría y registro, en su caso, suelen oscilar aprox; entre 1,5% y 2,5% (aranceles variables según precio, n.º de copias y complejidad). El comprador elige notario. Si el comprador precisase de hipoteca: tasación, condiciones y costes bancarios serán según entidad elegida por el comprador, así como los gastos de gestoría, y cualesquiera otros gastos inherentes a la formalización de la compraventa que legalmente correspondan a la parte compradora, salvo pacto expreso en contrario con el vendedor. El consumidor tiene, conforme a la normativa vigente, a su disposición información y documentación adicional relativa al inmueble y condiciones de la compraventa, que podrá ser consultada en C/Joaquín Costa 4, bajo 46005 Valencia o urbe2@remax.es. Honorarios de mediación inmobiliaria a cargo del COMPRADOR: (3% del precio final de venta más IVA (21%), salvo otro pacto.); y de VENDEDOR (según acuerdo con el mismo). Se informa al consumidor que la agencia actúa como intermediaria inmobiliaria en la operación, estando cualquier eventual compraventa y sus condiciones sujeta a la aceptación expresa del propietario-vendedor y a la posterior formalización del correspondiente contrato.
Gastos de Compraventa
Calcula el coste total real de adquisición de este inmueble de acuerdo con las obligaciones de transparencia establecidas por la Ley 10/2025.
Datos del inmueble
El precio de venta se obtiene directamente del anuncio. Indica si se trata de obra nueva o segunda mano y selecciona la comunidad autónoma para aplicar el tipo impositivo correcto.
¿Habrá hipoteca?
Si el comprador necesita financiación bancaria, los gastos de constitución de la hipoteca deben también contemplarse en el coste total de la operación.
Todos estos gastos deben aparecer desglosados en el anuncio del inmueble desde el primer momento de su publicación. Queda prohibida la práctica del precio por tramos: no se pueden añadir costes adicionales durante la negociación que no figurasen en el anuncio inicial.
Estimación orientativa. Los impuestos (ITP, IVA/IGIC, AJD) son fijos según la normativa vigente a 06/03/2026. Los importes de notaría, registro y gestoría son aproximaciones calculadas conforme a los aranceles en vigor. Nota: Cataluña aplica ITP del 10% hasta el 30/06/2026 y bajará al 9% a partir del 01/07/2026. Se recomienda consultar con un profesional para obtener el cálculo exacto adaptado a cada operación.

